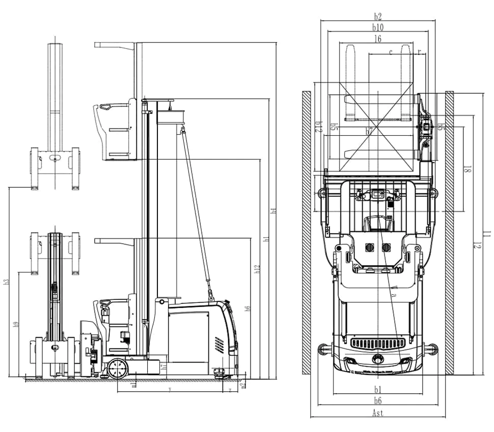
OPTS15