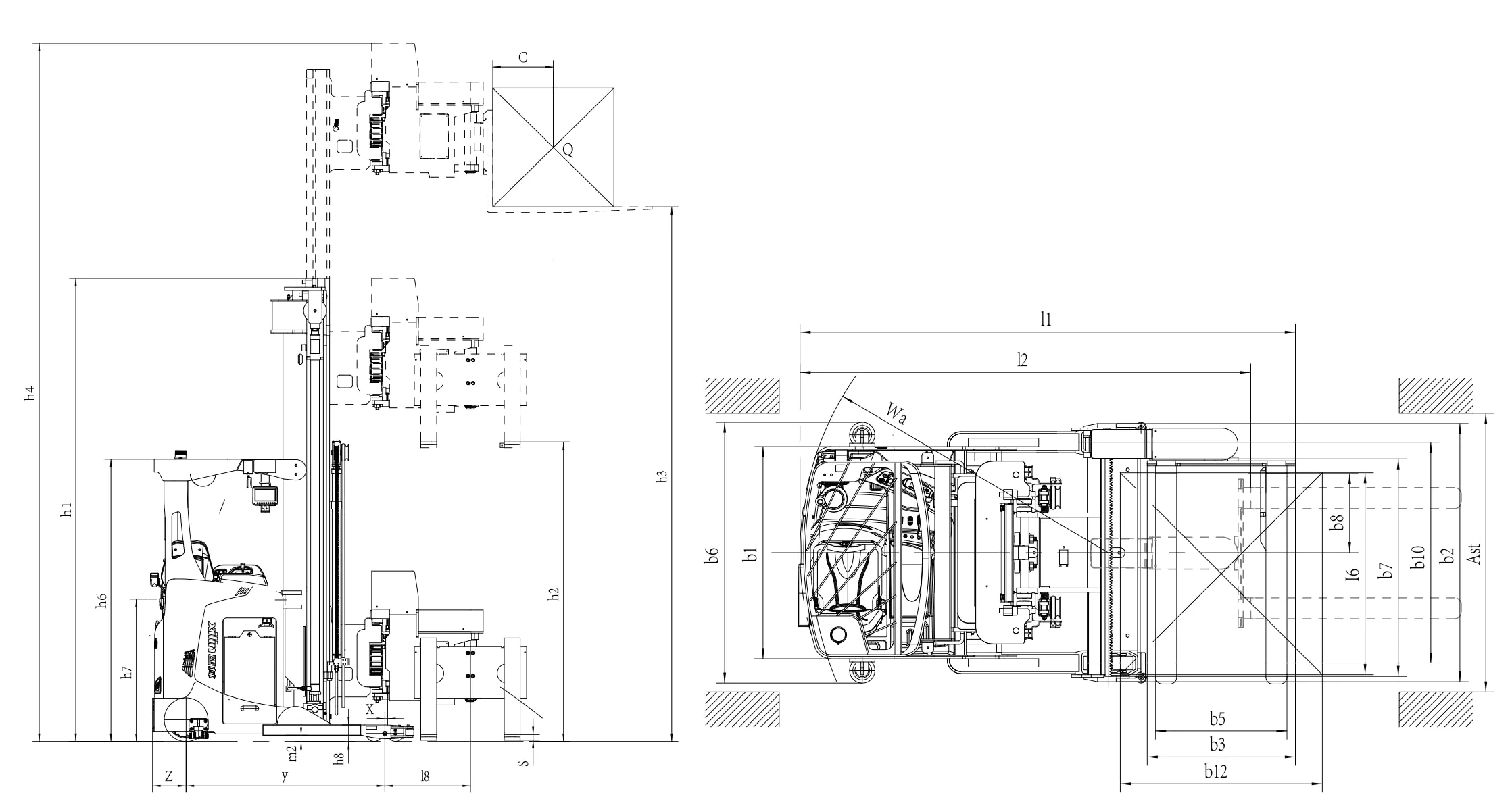
OPD15Z