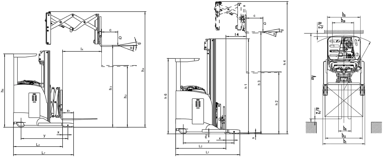
CQDH15-18C