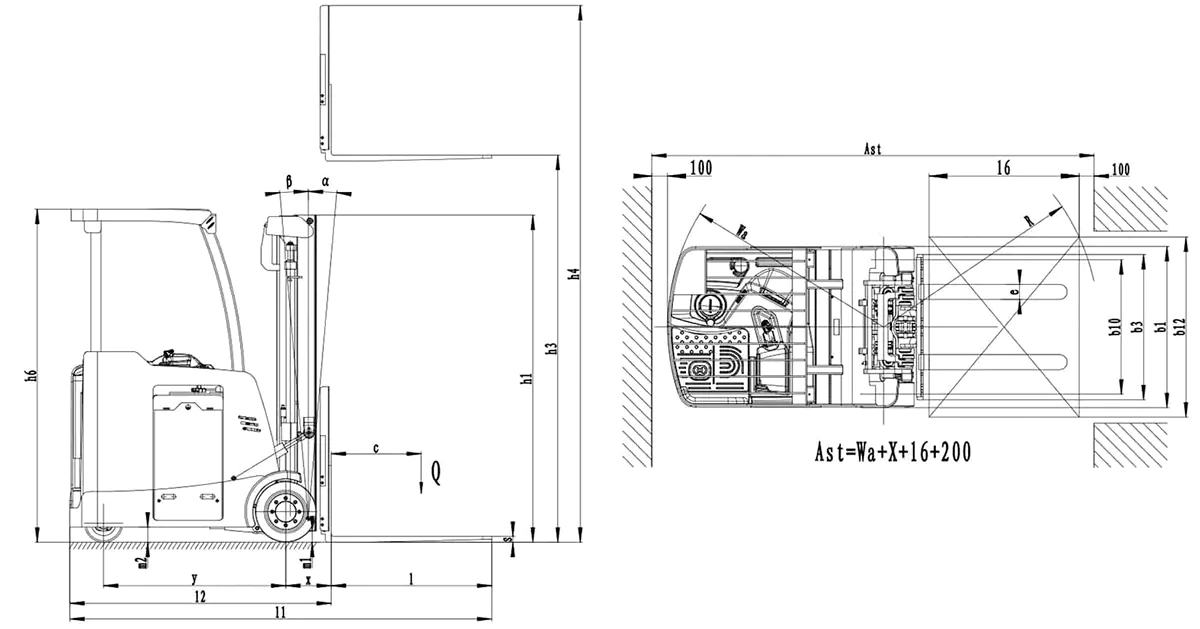
CPD20SR