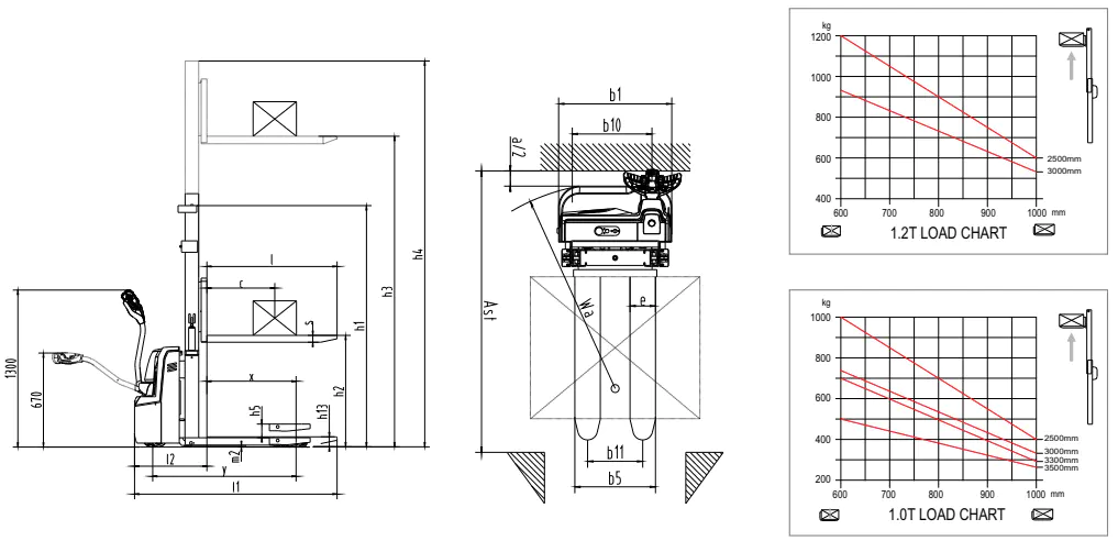
CDD10R-ES/CDD12R-ES