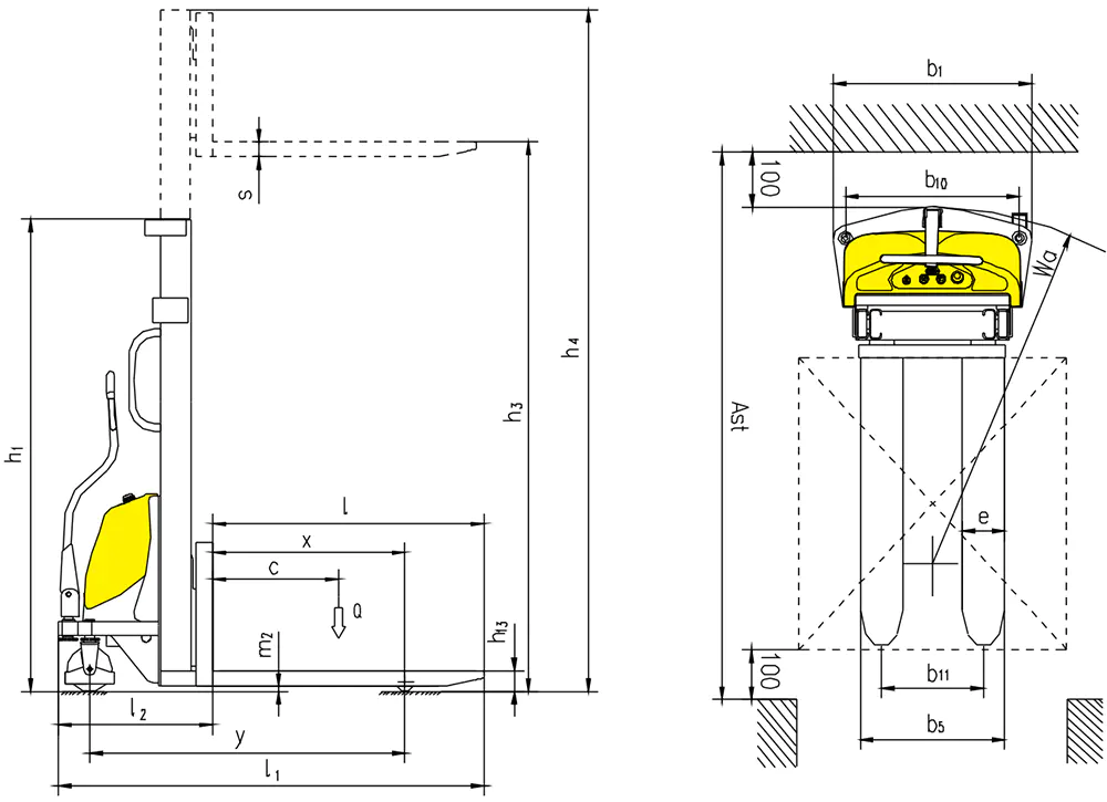
CDD10/15B-III